The Tortolita

⭐ Premium – 1003 SF | 2 Bed | 2 Bath

The Tortolita exterior
The Tortolita interior
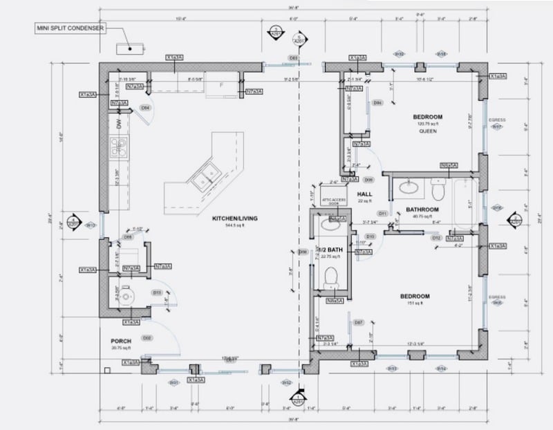
The Tortolita floor plan

Read What Our Clients Are Saying

Hear from homeowners who transformed their properties with our ADU solutions. Our clients love the quality, craftsmanship, and seamless process we provide. Let their experiences inspire your own ADU journey.

“Working with Brad, Juan, and Russ at Tucson Tiny Homes on the design and build of my casita was an outstanding experience from start to finish. Their team combines creativity, craftsmanship, and professionalism to create a space that is both beautiful and highly functional. From the initial consultation, they took the time to understand my needs, style preferences, and budget, making the entire process easier than I expected.

I highly recommend Tucson Tiny Homes to anyone looking for a thoughtfully designed and expertly built casita or small living space. Their attention to detail, reliability, and customer-focused approach truly set them apart.”

Annette Hutchinson

“We have been working with Brad Jones of Tiny Homes of Tucson for several months now. After meeting us on the property, most of our communication has been long distance, but he is always available to us via telephone, text and email. He is always prompt in answering our questions. He has been extremely patient with us in the design phase and he is quite knowledgeable on the various requirements of the city and county. We highly recommend Brad and his company.”

Don Burgess

“We are just getting started on our way with our project. It is an exciting & wonderful time. You have been on point with all that you have done for us so far. Looking forward to the next steps on our Tiny House Build!!!!”

Tina Gowan

“I’ve had the pleasure of working with Tiny Homes of Tucson in a professional capacity and can confidently say they are an exceptional company. Brad is knowledgeable, honest, and passionate about what they do. Their expertise in building ADUs is clear, and they care deeply about delivering quality and value to their clients. If you’re considering building an ADU in Arizona, Tiny Homes of Tucson is a team you can trust to guide you through the process.”

Taylor Holtby

“It has been a pleasure working with Brad of Tiny Homes of Tucson on my casita project. He has been most accommodating in customizing my tiny home to be wheelchair accessible and to coordinate aesthetically with the main house. I have been able to plan everything long distance and Brad is incredibly responsive to my emails and text messages.”

Susan Broderman

“Brad is very easy to work with. He is very in tune with our needs and desires as well as patient!”

Jeffrey Allen Love

“Our meetings have been productive and informative. You have listened to my questions, desires, and concerns. Of course, the proof will be in the finished product but I feel confident that it will meet my expectations. Thank you.”

Molly Kent

“We are getting started with Tiny homes of Tucson and building a Casita. Brad has been great to work with which is how we decided to work with them. He has been very quick to respond, very attentive to our concerns and also very willing to get us to where we are happy and what we can afford. If you are looking to build a Casita I fully recommend Tiny homes of Tucson.”

Scott Simmons

“I recently contracted with Brad Jones at Tiny Homes of Tucson to build a house for me. He has responded promptly and thoroughly to all my questions, whether by text, email or phone. I am looking forward to working with him through the building process.”

M

“Nice tiny homes at a really nice tiny price. Very fast response time.”

Chris Sinatra
Read More Reviews